Menu
Un projet réalisé par :AGENCE PIUBELLI  Architecte à Toulouse

Réaménagement de l'espace nuit + sdb dans toulousaine

 Toulouse - 31
AGENCE PIUBELLI
Accueil Projets Réaménagement de l'espace nuit + sdb dans toulousaine

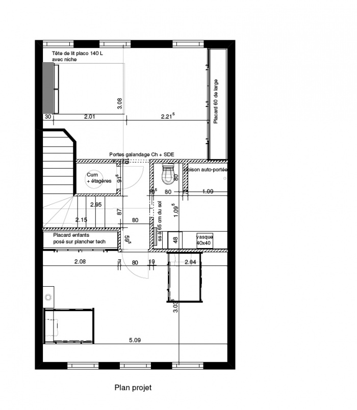
Le R+1 de cette toulousaine était conçu pour faire de la location de chambre d'étudiants. L'espace était séparé en 2 avec de chaque côté une chambre+sde+wc.
La volonté des nouveaux propriétaires était de réorganiser l'espace afin d'avoir 2 véritables chambres avec une sde commune, le tout dans une ambiance contemporaine et cosy.

Réaménagement de l'espace nuit + sdb dans toulousaine
  • Réaménagement de l'espace nuit + sdb dans toulousaine : image_projet_mini_44039

    Etat des lieux

  • Réaménagement de l'espace nuit + sdb dans toulousaine : plan projet

    Projet

  • Réaménagement de l'espace nuit + sdb dans toulousaine : chambre avant

    Avant

  • Réaménagement de l'espace nuit + sdb dans toulousaine : sdb avant

    Avant

  • Réaménagement de l'espace nuit + sdb dans toulousaine : SDB 1.JPG

    Un meuble vasque "petit prix" conçu sur-mesure à partir d'éléments achetés dans des enseignes de grande distribution (plan de travail et meuble rangements)

  • Réaménagement de l'espace nuit + sdb dans toulousaine : douche
  • Réaménagement de l'espace nuit + sdb dans toulousaine : niche
  • Réaménagement de l'espace nuit + sdb dans toulousaine : chambre 1

    Chambre après

  • Réaménagement de l'espace nuit + sdb dans toulousaine : chambre 2

    Chambre après

  • Réaménagement de l'espace nuit + sdb dans toulousaine : escalier

    Escalier recouvert de béton décoratif

Trouvez un architecte pour votre projet

Protection de vos données personnelles

Depuis toujours, architectes-france.com ne transfère aucune donnée personnelle à d'autres acteurs que ceux directement concernés par le projet (architectes, architectes d'intérieur...) et qui appartiennent à son réseau. Nos listes ne sont jamais transmises ou vendues à des partenaires extérieurs, même si ceux-ci appartiennent au domaine de la construction.
Toute modification dans ce domaine ne serait effectuée qu'avec votre consentement.

Je consens à ce que mes données personnelles soient collectées pour permettre à architectes-france de transférer votre projet aux architectes. Seul Architectes-france, ses équipes internes et la maitrise d'oeuvre concernée par le projet y ont accès. Aucune transmission de données à des tiers à l'exclusion de ceux décrits ci dessus n'est réalisée.

Mes données téléphoniques seront uniquement utilisées par Architectes-france.com et les architectes de notre réseau dans le cadre de la qualification et du suivi de mon projet.

Les données sont conservées pendant une durée de 18 mois courant à partir des derniers contacts effectifs entre architectes-france et vous ou architectes-france et un membre de la maitrise d'oeuvre en rapport avec ce projet et qui serait en relation avec architectes-france.

Conformément à la loi « informatique et libertés », vous pouvez exercer votre droit d'accès aux données vous concernant et les faire rectifier en contactant : Architectes-france, 23 avenue du Mirail - parc du Mirail - 33370 Artigues-près Bordeaux. Tél. 05.47.74.51.01 - contact@architectes-france.com

Trouvez un architecte pour votre projet

Protection de vos données personnelles

Depuis toujours, architectes-france.com ne transfère aucune donnée personnelle à d'autres acteurs que ceux directement concernés par le projet (architectes, architectes d'intérieur...) et qui appartiennent à son réseau. Nos listes ne sont jamais transmises ou vendues à des partenaires extérieurs, même si ceux-ci appartiennent au domaine de la construction.
Toute modification dans ce domaine ne serait effectuée qu'avec votre consentement.

Je consens à ce que mes données personnelles soient collectées pour permettre à architectes-france de transférer votre projet aux architectes. Seul Architectes-france, ses équipes internes et la maitrise d'oeuvre concernée par le projet y ont accès. Aucune transmission de données à des tiers à l'exclusion de ceux décrits ci dessus n'est réalisée.

Mes données téléphoniques seront uniquement utilisées par Architectes-france.com et les architectes de notre réseau dans le cadre de la qualification et du suivi de mon projet.

Les données sont conservées pendant une durée de 18 mois courant à partir des derniers contacts effectifs entre architectes-france et vous ou architectes-france et un membre de la maitrise d'oeuvre en rapport avec ce projet et qui serait en relation avec architectes-france.

Conformément à la loi « informatique et libertés », vous pouvez exercer votre droit d'accès aux données vous concernant et les faire rectifier en contactant : Architectes-france, 23 avenue du Mirail - parc du Mirail - 33370 Artigues-près Bordeaux. Tél. 05.47.74.51.01 - contact@architectes-france.com