Menu
Un projet réalisé par :Olivier Olindo  Architecte à Ivry-sur-Seine
Olivier Olindo
Accueil Projets Maison R

Ma mission est d'aider à repenser l'espace, optimiser la lumière de cette maison et de repenser l'intégralité du RDC (cuisine, salon, salle à manger et l'escalier)

Maison R

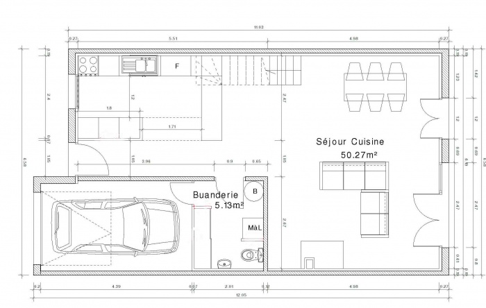
Je suis parti sur un plan vierge du rdc existant afin de répondre au mieux aux attentes des clients.
La cuisine s'est ouverte avec un espace bar délimitant la fin de la cuisine et le début du séjour, permettant plus de clarté dans le RDC.
L'entrée reste marquée par une cloison basse accueillant des éléments de cuisines.
L'ouverture complète du RDC permet d'apporter de la lumière partout.
A l'étage, j'ai créé une salle de bain directement dans la chambre permettant d'avoir deux blocs salle de bain au lieu de une seule auparavant.
(Toutes les photographies ont été prises en cours de chantier)

  • Maison R : Vue de la salle à manger vers la cuisine

    Vue de la salle à manger vers la cuisine

  • Maison R : Vue sur la nouvelle cuisine

    Vue sur la nouvelle cuisine

  • Maison R : Vue de la cuisine vers le salon

    Vue de la cuisine vers le salon

  • Maison R : SdB dans la chambre

    SdB dans la chambre

  • Maison R : SdB dans la chambre

    SdB dans la chambre

  • Maison R : Plan RDC

    Plan RDC

  • Maison R : Plan étage

    Plan étage

Trouvez un architecte pour votre projet

Protection de vos données personnelles

Depuis toujours, architectes-france.com ne transfère aucune donnée personnelle à d'autres acteurs que ceux directement concernés par le projet (architectes, architectes d'intérieur...) et qui appartiennent à son réseau. Nos listes ne sont jamais transmises ou vendues à des partenaires extérieurs, même si ceux-ci appartiennent au domaine de la construction.
Toute modification dans ce domaine ne serait effectuée qu'avec votre consentement.

Je consens à ce que mes données personnelles soient collectées pour permettre à architectes-france de transférer votre projet aux architectes. Seul Architectes-france, ses équipes internes et la maitrise d'oeuvre concernée par le projet y ont accès. Aucune transmission de données à des tiers à l'exclusion de ceux décrits ci dessus n'est réalisée.

Mes données téléphoniques seront uniquement utilisées par Architectes-france.com et les architectes de notre réseau dans le cadre de la qualification et du suivi de mon projet.

Les données sont conservées pendant une durée de 18 mois courant à partir des derniers contacts effectifs entre architectes-france et vous ou architectes-france et un membre de la maitrise d'oeuvre en rapport avec ce projet et qui serait en relation avec architectes-france.

Conformément à la loi « informatique et libertés », vous pouvez exercer votre droit d'accès aux données vous concernant et les faire rectifier en contactant : Architectes-france, 23 avenue du Mirail - parc du Mirail - 33370 Artigues-près Bordeaux. Tél. 05.47.74.51.01 - contact@architectes-france.com

Trouvez un architecte pour votre projet

Protection de vos données personnelles

Depuis toujours, architectes-france.com ne transfère aucune donnée personnelle à d'autres acteurs que ceux directement concernés par le projet (architectes, architectes d'intérieur...) et qui appartiennent à son réseau. Nos listes ne sont jamais transmises ou vendues à des partenaires extérieurs, même si ceux-ci appartiennent au domaine de la construction.
Toute modification dans ce domaine ne serait effectuée qu'avec votre consentement.

Je consens à ce que mes données personnelles soient collectées pour permettre à architectes-france de transférer votre projet aux architectes. Seul Architectes-france, ses équipes internes et la maitrise d'oeuvre concernée par le projet y ont accès. Aucune transmission de données à des tiers à l'exclusion de ceux décrits ci dessus n'est réalisée.

Mes données téléphoniques seront uniquement utilisées par Architectes-france.com et les architectes de notre réseau dans le cadre de la qualification et du suivi de mon projet.

Les données sont conservées pendant une durée de 18 mois courant à partir des derniers contacts effectifs entre architectes-france et vous ou architectes-france et un membre de la maitrise d'oeuvre en rapport avec ce projet et qui serait en relation avec architectes-france.

Conformément à la loi « informatique et libertés », vous pouvez exercer votre droit d'accès aux données vous concernant et les faire rectifier en contactant : Architectes-france, 23 avenue du Mirail - parc du Mirail - 33370 Artigues-près Bordeaux. Tél. 05.47.74.51.01 - contact@architectes-france.com