
Maison aux roseaux (95)
MO : privé
Mission : complète
Surface : 150m²
Budget : 250 000 €
Le projet est conçu pour tirer parti des qualités du site, une immense langue de gazon qui s'étend en légère pente du Nord au Sud. L'implantation du bâtiment en contrehaut permet de dégager un grand jardin généreusement planté au Sud.
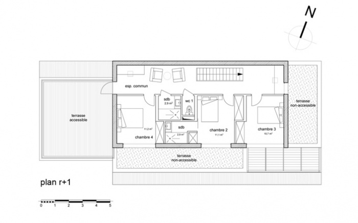
La maison est fragmentée en volumes horizontaux qui glissent et s'interpénètrent. Le rez de jardin, qui rassemble les pièces à vivre et la suite parentale, s'ouvre généreusement au Sud sur le jardin. L'étage est entièrement réservé aux enfants : les chambres et la salle de bain s'organisent autour d'un espace de jeux commun, ouvert sur une terrasse.
La conception du projet est accompagnée d'une forte démarche environnementale. Ainsi, l'implantation du projet permet d'optimiser les apports solaires passifs. En outre, un soin particulier est porté sur le choix de matériaux écologiques, et sur la performance de l'isolation et de la ventilation. Cette attention environnementale, présente dès le début de la conception, permet de réduire la consommation énergétique du bâtiment sans le recours à une débauche d'équipements techniques couteux.
-
-
Etage
Rez de Jardin